区画・間取り
六甲の緑濃い山々、煌めく夜景、遠くは大阪湾までも。自宅の窓辺から楽しめる、開放感が魅力です。
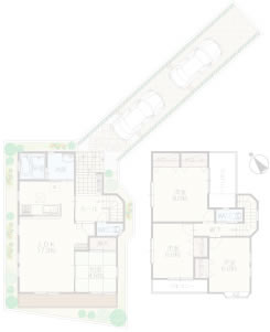
1号地4LDK
土地面積: 33.83坪(111.85u)建物面積:332.81坪(108.47u)プライバシーを保ちながら、光と風も 独立性に優れた、贅沢角地プラン
2号地 4LDK
土地面積: 38.52坪(127.36u)建物面積:31.81坪(105.16u)キッチンに立てば、家中に目が届く工夫 子育てが快適になる、ママ目線プラン
1号地 2号地
売約済   売約済
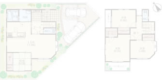
3号地 4LDK
土地面積: 38.25坪(126.47u)建物面積:30.43坪(100.61u)土地の個性を活かし、設計を工夫効率の良い間取りでゆとりを実現
4号地4LDK
土地面積: 38.52坪(127.36u)建物面積:31.81坪(105.16u)出窓、ルーフバルコニー、ウォークインクロゼットも光と風が爽やかな、スッキリ暮らせるプラン
3号地 4号地
売約済   売約済
5号地4LDK
土地面積: 35.12坪(116.12u)建物面積:30.73坪(101.59u)広いホール、ゆとりのポーチゲストを招きたくなる、自慢のわが家
6号地 4LDK
土地面積: 32.16坪(106.34u)建物面積:31.60坪(104.47u)南面が広がる眺望、開放感を満喫外からの視線を遮る、快適角地プラン
5号地 6号地
売約済   売約済
 

▲PAGE TOP